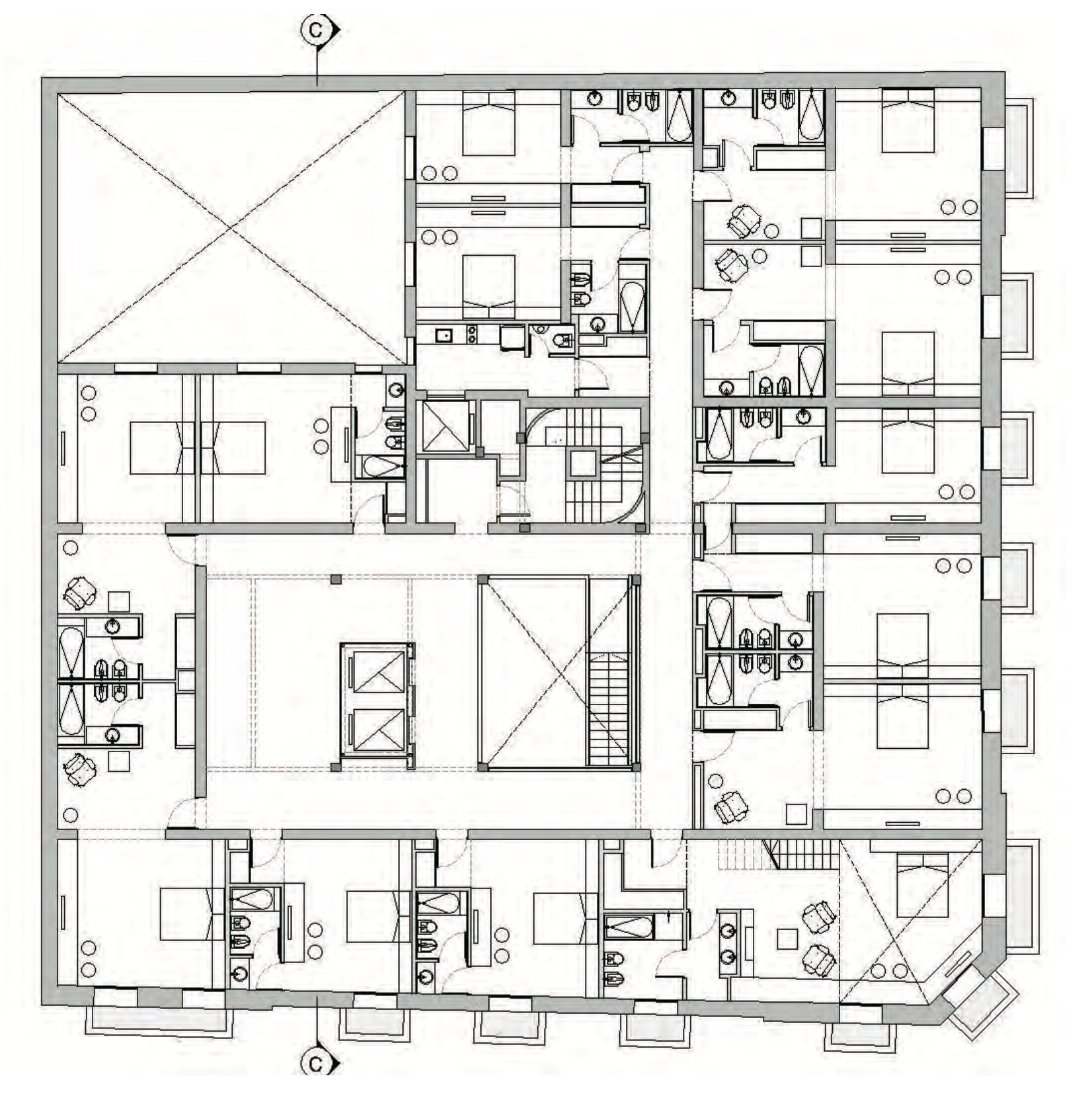
Hotel Familiar San Martín, esquina Av. Córdoba . Caba . Buenos Aires . Argentina - Superficie cubierta: 3.600 m2