Arquitectura
Estudio
Contacto
Arquitectura
Estudio
Contacto
Juan Weiss

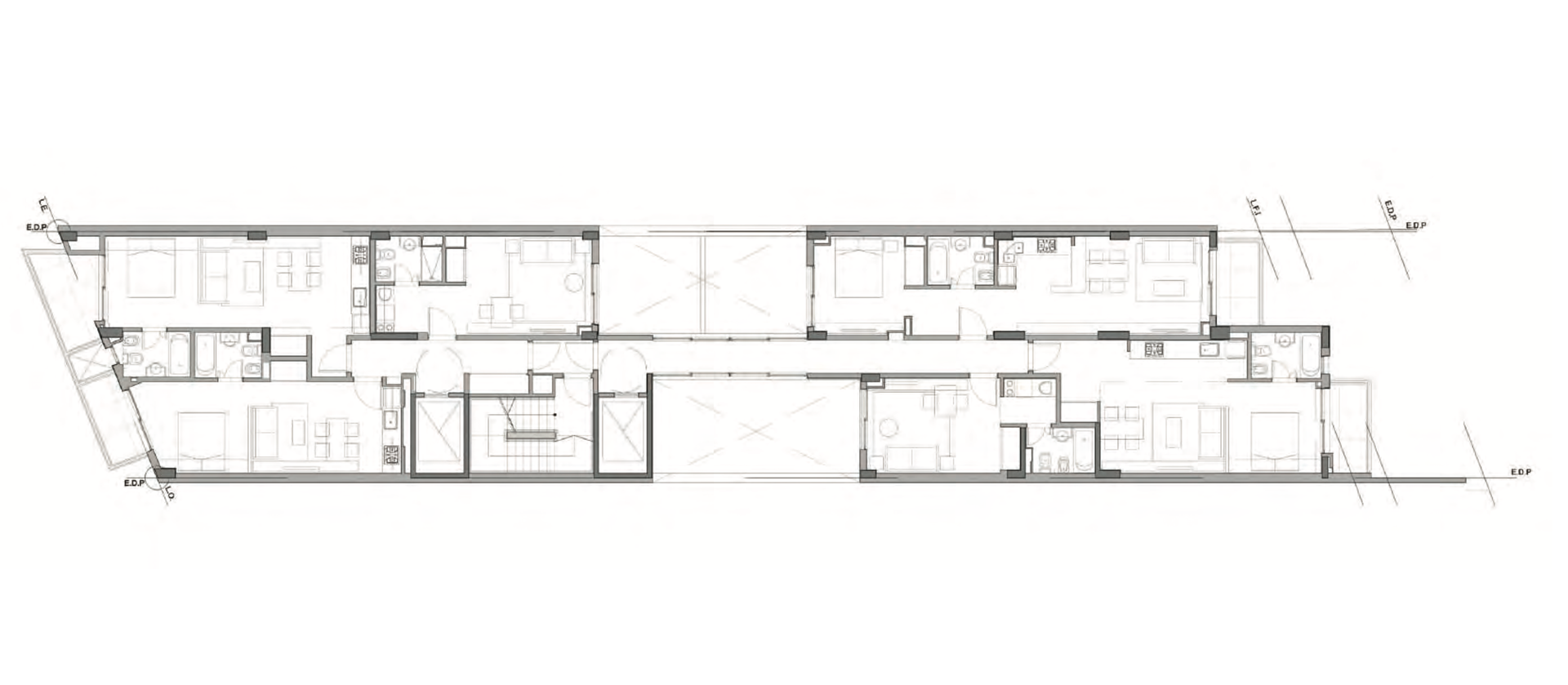
BALBIN

Edificio de departamentos - Obra terminada Balbín 2437. Caba, Buenos Aires - Superficie cubierta: 3.950 m2

You may also like

JOAQUIN DE VAINA
2023
CONJUNTO DARWIN
2023
MADRYN I
2023
HOSPITAL ITALIANO
2023
VILLA BRAVA II
2023
LOMAS
2023
NAZCA MALL
2023
TERRAZAS DE VILLA BRAVA
2023
ECHEVERRÍA
2023
CAMPO CHICO
2023
↑Back to Top
8Q ARQUITECTOS · ESTUDIO@8Q-ARQUITECTOS.COM.AR