Arquitectura
Estudio
Contacto
Arquitectura
Estudio
Contacto
Juan Weiss

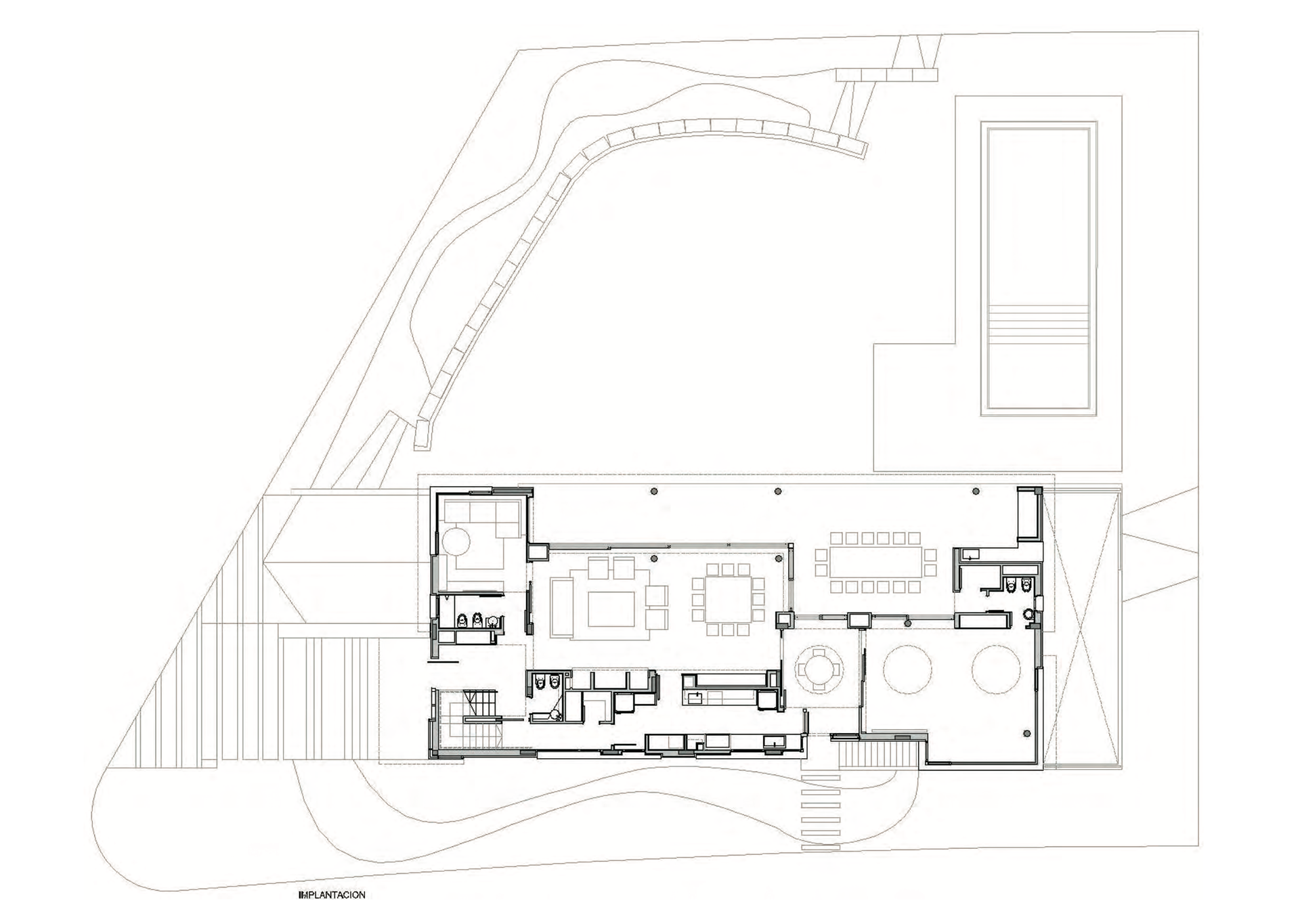
CAMPO CHICO

Casa unifamiliar Campo Chico Country Club . Matheu . Buenos Aires . Argentina - Superficie cubierta: 700 m2

You may also like

SUAREZ
2023
JOAQUIN DE VAINA
2023
MADRYN I
2023
TORRE LAS PLAZAS
2023
ESPORA
2023
LOMAS
2023
ECHEVERRÍA
2023
HOTEL SPLENDOR
2023
MADRYN II
2023
TERRAZAS DE VILLA BRAVA
2023
↑Back to Top
8Q ARQUITECTOS · ESTUDIO@8Q-ARQUITECTOS.COM.AR